部屋詳細情報

りそな京都ビル

この物件を問い合わせる この物件を問い合わせる
(準備中)

【京都市中京区の貸事務所】

●四条烏丸周辺、烏丸通り面す、銀行系オフィスビル●



四条烏丸交差点すぐの立地、烏丸通に面した銀行が入居するハイグレードオフィスビルです。立地環境はもちろん、りそな銀行が入居しているので、信用度が高いビルでもありますね。

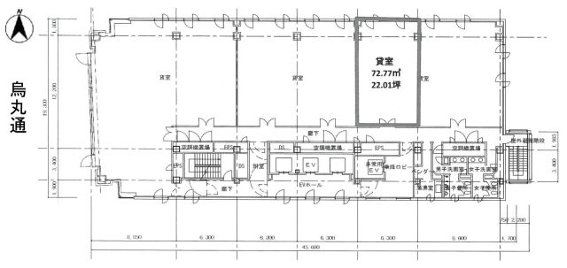
賃貸条件・間取り 写真

賃貸条件・間取り

募集階

8階

面積

22.01坪 / 72.77m2

保証金

賃料

お問い合わせ下さい

共益費

66,030円

契約形態

定期建物賃貸借契約

契約期間

2年

更新料

入居可能日 2026年3月上旬予定

間取り

設備

  • 【新耐震基準対応】
  • エレベーター
  • 光ファイバー(MDF盤まで)
  • 駐車場
  • 共用トイレ(洋式・ウォシュレット付)
  • 共用給湯室
  • 監視カメラ
  • セキュリティ(有人警備)
  • セキュリティ(機械警備)
  • セキュリティ
  • エアコン(個別空調)
  • エアコン(ビル空調)

写真

(準備中) (準備中) (準備中) (準備中)

この物件を問い合わせる

このページの先頭へ